I am an independent drafter and designer based in Los Angeles, with extensive experience collaborating with local construction companies.
I specialize in delivering a full range of services for ADU projects, home additions, garage conversion, new construction, and more.

I engage with you to fully understand your project’s needs and vision. Our discussions cover your objectives, preferences, and any specific requirements to ensure the design aligns with your expectations. When needed, I take on-site measurements to document the existing conditions. I may contact the city to obtain publicly available information, such as easements or standard development guidelines, when applicable.Using this information, the design phase begins—translating your ideas into a clear and functional layout prepared with general local requirements in mind.
Many times, it helps to get a 3D visual for your project, as it provides clarity and enhances understanding of the design.
I also provide high-quality 3D renderings that bring your design to life. These renderings offer a realistic visualization of your project, helping you to better understand the final outcome before construction begins. They are an essential tool for showcasing the design and making informed decisions throughout the process. To see some of my previous work, feel free to visit my Instagram page.
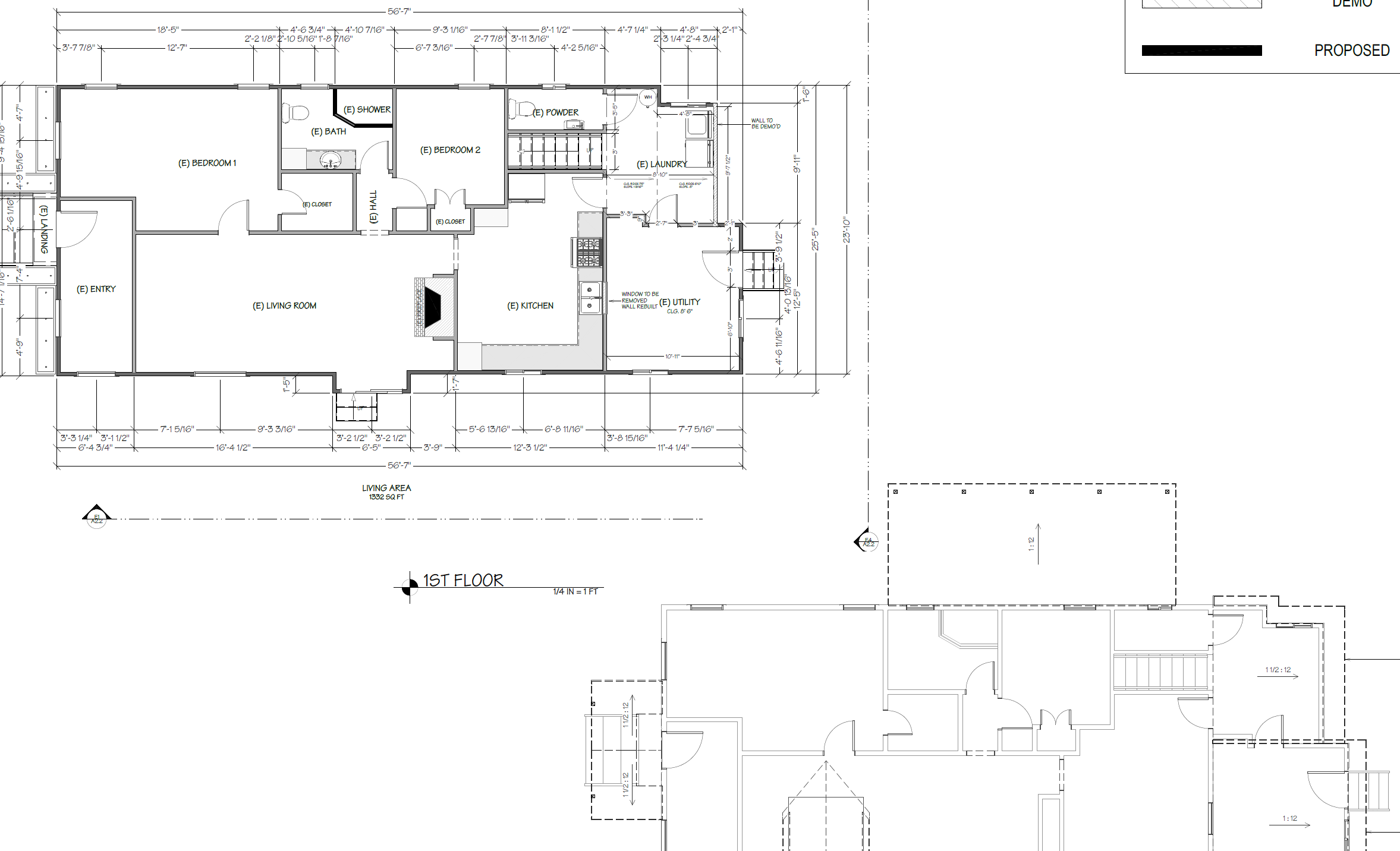
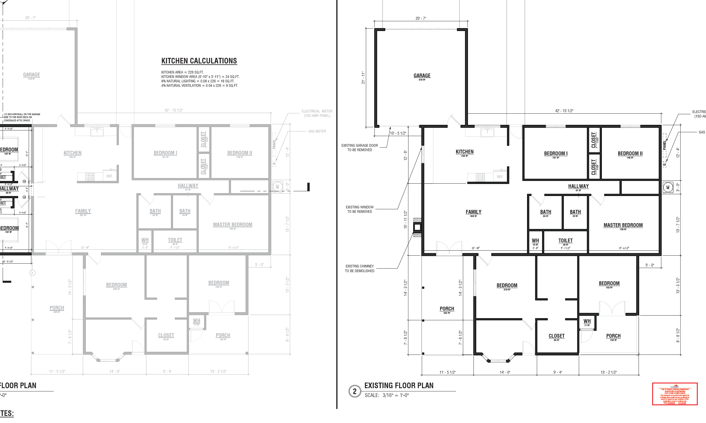
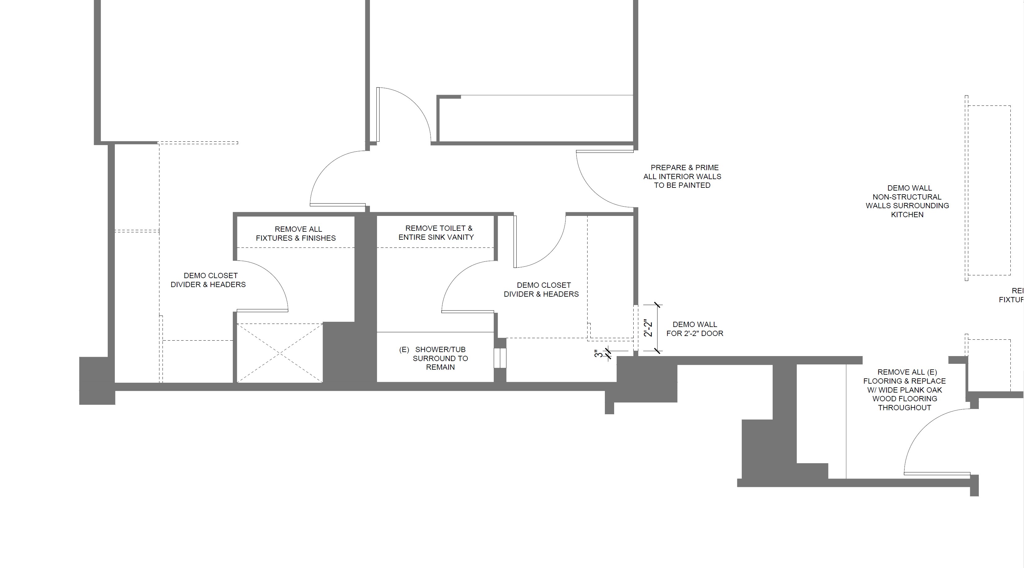
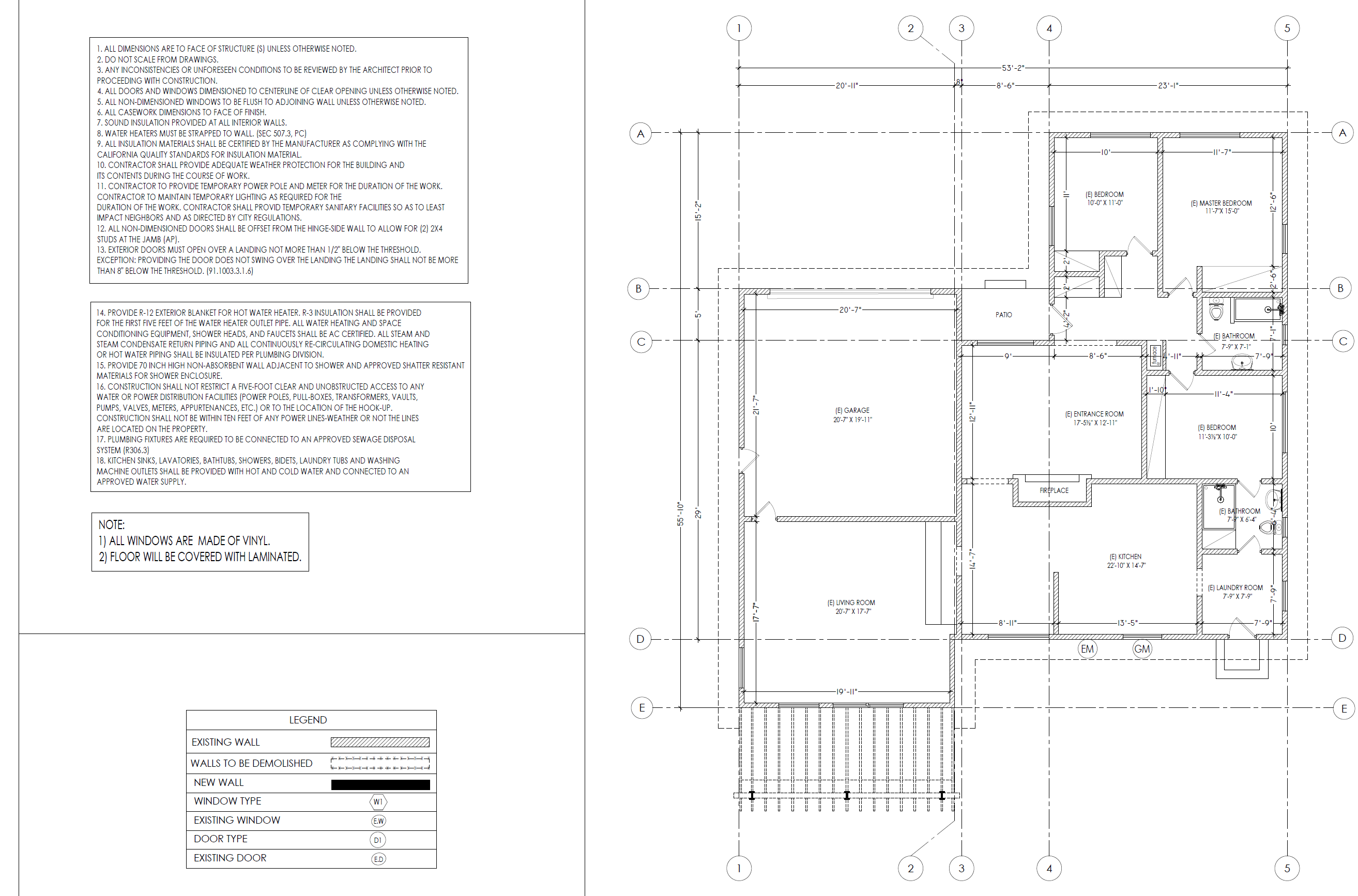
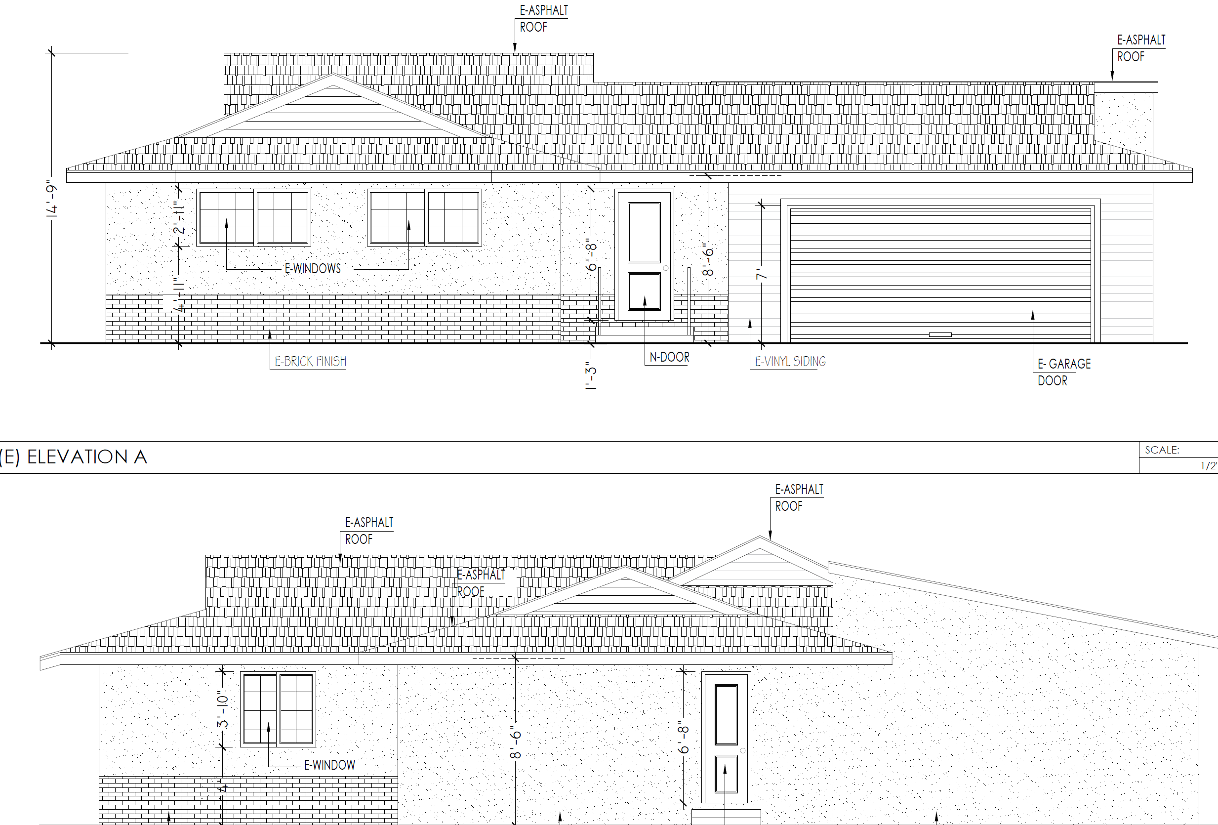
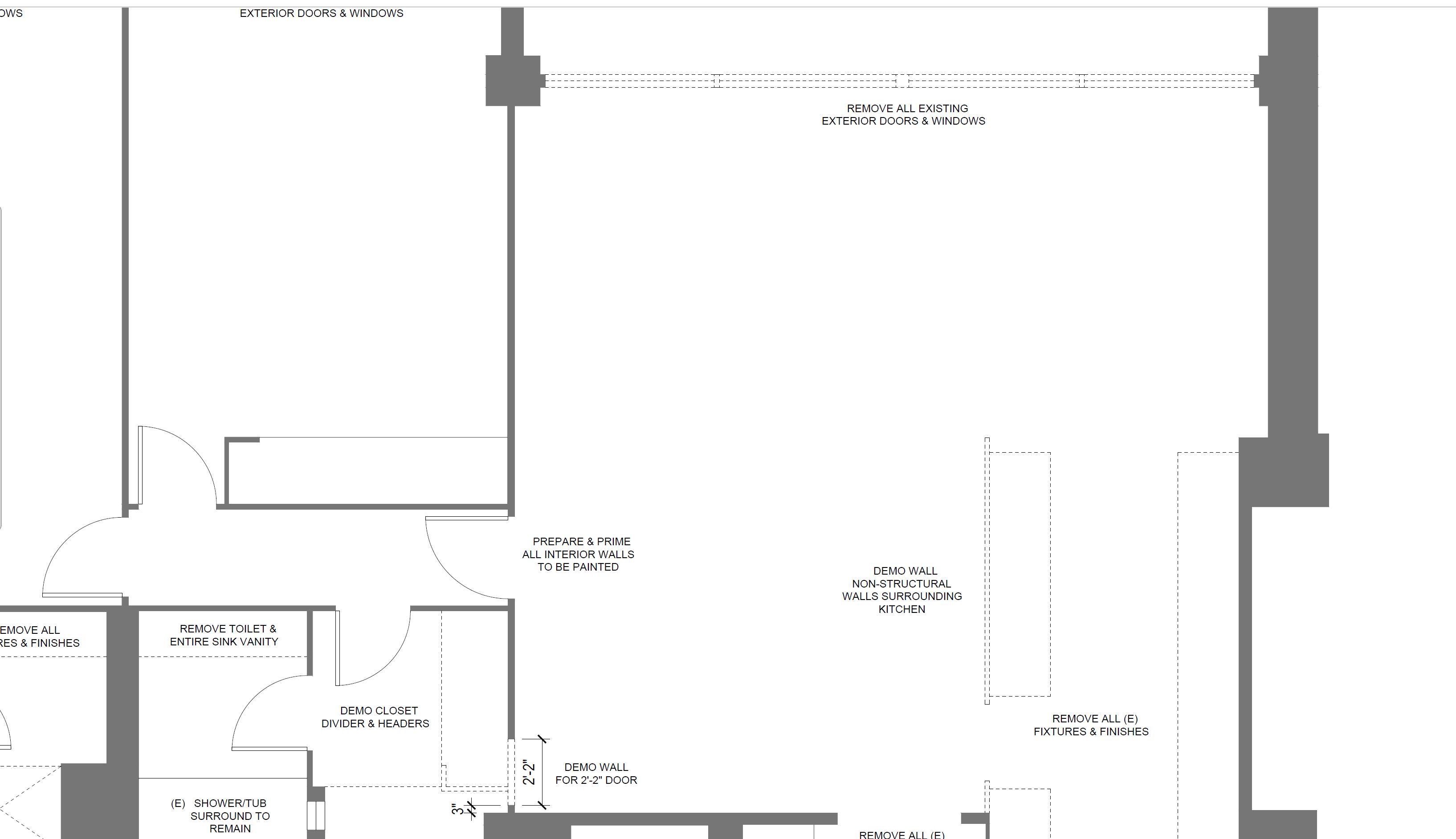
I work closely with clients to create functional and well-planned layouts tailored to their needs. From initial concepts to detailed drafting, I prepare the plan sets that include Site Plans, Floor Plans, Elevations, Sections, Electrical Layouts, and general non-engineering Mechanical/Plumbing information as required for permit submission.After gathering project information and discussing objectives, I prepare an initial layout for review. We can schedule a Zoom meeting to go over the design, answer questions, and make adjustments. Once the client approves the layout, I complete the full set of plans.When required, the plans are reviewed and stamped by a licensed California engineer, who provides all structural calculations and ensures compliance.I provide drafting and design support for a wide range of residential projects, including ADUs, additions, new homes, and non-structural commercial spaces up to two stories. I also assist with smaller projects such as retaining walls (engineer-designed), pavers, interior reconfigurations, and other improvement plans.Whether it’s a large remodeling project or a simple layout update, I am committed to delivering clear, detailed, and permit-ready plans tailored to each client’s goals. Please note: I am not a licensed architect or engineer. I provide design and drafting services and collaborate with licensed professionals when required by law.
For projects requiring engineering, I collaborate with licensed California engineers, who prepare all structural calculations, structural plans, and any required mechanical, electrical, and plumbing engineering.
My role is limited to drafting, preparing plan sheets, and coordinating the engineer’s documents within the permit set. All engineering work is performed independently and under the responsible charge of licensed professionals.
Most residential projects require Title 24 energy compliance documentation. I coordinate this work with certified energy consultants to ensure that the required reports are completed by qualified professionals and included with your permit submittal.These documents are prepared by licensed or certified consultants, and I integrate them into the complete plan package.
Once the plans are ready, I take care of the permit coordination process to help your project move forward smoothly and efficiently. This includes preparing and submitting the drafted plan set, along with the engineering documents and Title 24 reports provided by licensed professionals, to the city for review. I communicate with the appropriate departments, track the application status, and relay any plan-check comments or required revisions to the client and the licensed professionals involved. I assist in organizing the responses and updated documents needed for resubmittal to keep the application progressing.I also offer permit-expediting services, helping reduce delays by staying in close communication with the city and managing the administrative steps of the process. My goal is to simplify the permit experience and save you time by handling the submittal logistics on your behalf. Once the city completes its review and issues the permits, you’ll be ready to move forward with construction.
Looking to maximize your property’s potential? Whether you’re a homeowner seeking passive income through an ADU, planning a space for a family member, or a developer aiming to increase returns, i can help bring your vision to life. Explore my Gallery for inspiration, check out the FAQs.
Have questions? I’d love to hear from you! Reach out through the contact section below and Let’s get started on your project!
i'm here to collaborate.












The timeline for completing plans depends on the scope of the project. For an addition or a simple ADU, the drafted plan set is typically ready within 10 to 14 business days. Structural engineering documents and optional 3D renderings usually take an additional 7 to 14 business days, depending on complexity. More detailed designs or larger projects may require extra time to ensure everything is prepared accurately and ready for city review.
The approval timeline varies based on the city’s permitting process and the complexity of the project. Reviews typically take about 2–3 weeks per submittal, but this can vary depending on the city’s workload, local requirements, and project details. Some cities may require additional time for review or revisions. I help streamline the process by coordinating communication, tracking the application, and organizing any revisions requested by the city to keep the review moving as smoothly as possible.
Most construction projects, including additions, ADUs, and structural modification require permits under local building codes and city regulations. The specific permits needed depend on the project scope and the requirements of your local jurisdiction. Please note that the price you pay for the plans and engineering does not include city permit fees or other municipal costs such as plan check fees, impact fees, utility connection fees, or school district fees. These fees vary by city and project, and exact amounts are determined by the city. I guide you through the permitting process by helping organize the required documents, submitting the application on your behalf, and coordinating communication with the city to support a smooth review.